Nhà Khung Thép Dân Dụng 2 Tầng Bên Bờ Biển, Một Thiết Kế Tuyệt Vời
Liên hệ để báo giá
Với thiết kế nhà khung thép dân dụng 2 tầng này, khách hàng sẽ thực hiện được ước mơ của mình là được sống bên bờ biển, khi họ có một khu đất yên tĩnh ở gần bờ biển với quang cảnh đẹp và tầm nhìn ra biển tuyệt vời.
Mô tả
Nhà khung thép Dân Dụng 2 Tầng Đẹp

Với thiết kế nhà khung thép dân dụng 2 tầng này, khách hàng sẽ thực hiện được ước mơ của mình là được sống bên bờ biển, khi họ có một khu đất yên tĩnh ở gần bờ biển với quang cảnh đẹp và tầm nhìn ra biển tuyệt vời.

Ngôi nhà khung thép dân dụng 2 tầng được thiết kế “đảo ngược”, với các khu vực sinh hoạt như: nấu ăn, tiếp khách… ở tầng trên và phòng ngủ ở tầng dưới bởi những góc nhìn đẹp nhất, tự nhiên nhất là ở tầng cao hơn.

Ngôi nhà được thiết kể mở, không chỉ để tạo ra tầm nhìn đẹp,lấy được ánh sáng và gió tự nhiên xuyên suốt cho ngôi nhà, mà còn tạo cảm giác khoáng đạt đến bất ngờ cho ngôi nhà thép tiền chế này.

Các kiến trúc sư nhà khung thép dân dụng thường thiết kế một khoảng lùi có góc nghiêng so với độ cao khá vừa phải, nhằm mục đích tạo ra các dạng mái dốc. Nhưng chúng tôi đã thiết kế ngôi nhà theo cách khác, thay vào đó chúng tôi thiết kế một mái hai lớp có thể dịch chuyển được, thu được ánh sáng và góc nhìn 360 độ lên bầu trời cũng như lấy được gió tự nhiên, tiết kiệm được rất nhiều tiền điện. Một cái trần cao làm tăng thêm cảm giác rộng rãi cho ngôi nhà.

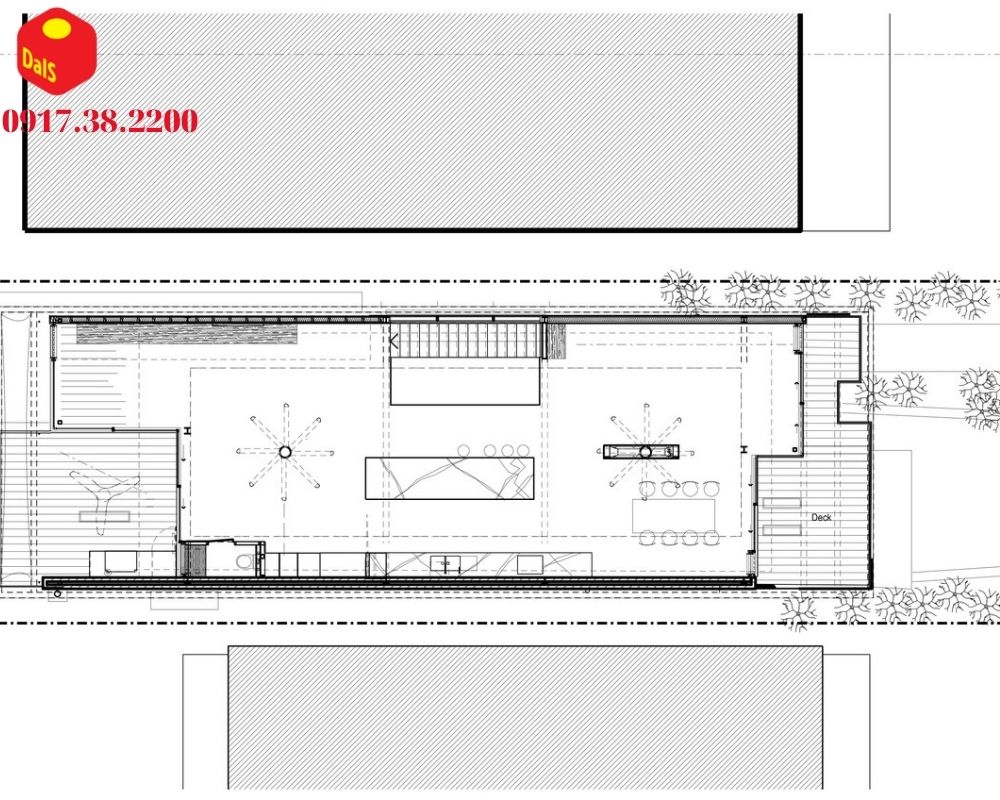
Về bố cục bài trí tầng trên cho ngôi nhà khung thép 2 tầng này, chúng tôi tập trung vào khu vực tiếp khách và bàn ăn ở mặt tiền phía đông, cùng với sân hiên gần nhất với tầm nhìn toàn cảnh ra biển. Nhà bếp nằm ở trung tâm, vị trí tốt cho không gian truyền thống của cuộc sống gia đình. Phía Đông là sân hiên lớn và khu để tổ chức những bữa ăn nướng, phục vụ ăn uống vào những ngày gió biển mạnh quá, đồng thời là khu vực học tập cho trẻ em và phụ huynh, nhằm tối đa hóa các hoạt động trong khu vực chung.

Ở tầng dưới gồm: phòng ngủ của người lớn nằm ở phía trước, để có thể đắm chìm vào khung cảnh ở bãi biển ngay khi thức dậy, phòng tắm được thiết kế riêng. Hai phòng ngủ cho trẻ em. Ở phía sau, một căn phòng chứa đồ mở ra khu vườn và hồ bơi.

Với thiết kế đan xen giữa hồ bơi và ngôi nhà, đảm bảo rằng có thế nhìn thấy hồ bơi ở hầu hết các khu vực trong ngôi nhà và sự phản chiếu của nước trong hồ bơi sẽ tạo ra ánh sáng vui nhộn trên trần nhà vào những thời điểm nhất định trong ngày.

Chúng tôi thiết kế, một hầm để xe dưới lòng đất, để không ảnh hưởng đến tầm nhìn đẹp của ngôi nhà, diện tích của hầm để xe có thể để được 2 chiếc ô tô.

Ngôi nhà khung thép tiền chế dân dụng 2 tầng này được xây bao bằng tường gạch và kính để tạo sự mát mẻ trong những ngày có lượng nhiệt cao, có thể tận dụng được ánh sáng tự nhiên tạo sự thoáng mát và rộng rãi.

Chúng tôi ưu tiên việc chiếu sáng tự nhiên và thông gió thay vì nhân tạo ở bất cứ đâu cho ngôi nhà, để có thể thúc đẩy việc sử dụng năng lượng có trách nhiệm. .




















