Ngôi Nhà Khung Thép Đường Sắt Một Ý Tưởng Độc Lạ
Liên hệ để báo giá
Mô tả
Nhà khung thép Dais Việt Nam xin giới thiệu đến quý khách hàng ngôi nhà khung thép đường sắt một ý tưởng độc lạ. Mẫu nhà này phù hợp với những dải đất hẹp, dài, nhà phố, nhà mặt đường. Ngôi nhà khung thép đường sắt này được đánh giá cao về chất lượng, tính thẩm mỹ cũng như mặt bằng công năng.
Ngoại thất nhà khung thép đường sắt
Mẫu nhà này được kiến trúc sư lấy ý tưởng từ những con đường sắt. Mẫu nhà đường sắt đã giải phóng ngôi nhà vè mặt hình thức và tính thẩm mỹ, tạo ra sự khác biệt.

Nội thất nhà khung thép đường sắt
Khi chúng ta bước vào nhà qua cánh cửa gỗ, chúng ta được chào đón bởi một tiền sảnh được chiếu sáng tự nhiên từ trên cao. Ánh sáng chiếu vào bức tường gạch có kết cấu phong phú, tạo ra những bóng đổ khác nhau về hình thức và cường độ theo thời gian. Ánh sáng dẫn chúng ta lên cầu thang tầng hai.
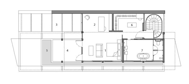
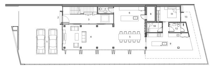
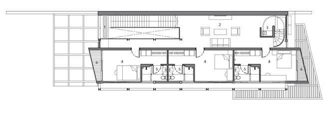
Sơ đồ mặt bằng công năng nhà khung thép đường sắt
Ngôi nhà gồm có 3 tầng được bố trí khoa học, mở rộng không gian, phân chia các khu vực chức năng hợp lý, thẩm mỹ.
Tầng 1 bao gồm các khu vực sau: hiên để xe, khu vực sinh hoạt chung, khu vực bếp ăn, 2 phòng ngủ, 2 phòng vệ sinh, 1 phòng thay đồ.
Tầng 2 bao gồm các khu vực sau: 1 khu sinh hoạt chung, 3 phòng ngủ , 3 phòng vệ sinh
Tầng 3 bao gồm các khu vực sau: 1 phòng ngủ master, 1 phòng tắm master, 1 phòng làm việc, 1 phòng thay dồ
Ngoài ra quý khách hàng có thể tham khảo thêm các mẫu thiết kế khác tại đây:
Nhà Khung Thép Nghỉ Dưỡng 1 Tầng 2 Phòng Ngủ
Nhà Khung Thép 2 Tầng 4 Phòng Ngủ
Các Mẫu Nhà Khung Thép Hiện Đại
Biệt Thự Khung Thép Mini 2 Tầng Có Sân Vườn Đẹp
Nhà Khung Thép 2 Tầng Đẹp Tại Khu Nghỉ Dưỡng
Biệt Thự Tiền Chế 2 Tầng 4 Phòng Ngủ Có Hồ Bơi Đẹp
Mẫu Nhà Khung Thép Cấp 4 Hiện Đại Đẹp Mê Mẩn
Nhà Khung Thép Dân Dụng 2 Tầng Bên Bờ Biển, Một Thiết Kế Tuyệt Vời
Nhà Khung Thép Scandinavia Đẹp, Độc Đáo
Nhà khung thép Dais Việt Nam là một trong những công ty thiết kế, xây dựng nhà khung thép hàng đầu tại Miền Bắc. Nếu anh chị đang băn khoăn không biết bắt đầu từ đâu trên hành trình xây dựng tổ ấm thân thương, hãy để chúng tôi hỗ trợ.


































